消防排烟风机是一种新型低噪高效节能型斜流式通风机,斜流式通风机流量大于离心式风机,全压高于轴流式风机,体积小于离心式风机,该风机通过了模拟机的实验研究,采用新的叶型与叶片,从而得到了更大的流量和压力, 提高了风机的效率。
消防排烟风机按叶轮直径分为300-1400mm十六种规格,按类型分A、B、C、D、E、F、S七种类型,共五十八个机号。风量由1500mm-90000m3/h,全压由185-2500Pa;这样就给设计部门和也难怪乎单位提供了充分的选择条件,具体数据参照风机性能参数表。
风机材料有钢制,玻璃钢制作,亦可防爆制作。(采用防爆措施,配用铝合金材料)
GXF系列斜流式通风机性能参数表
GXF-A型斜流式通风机性能参数表
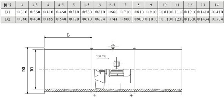
四、消防排烟风机外形及安装尺寸(mm)
消防排烟风机外形及安装尺寸(A、B、C、D、E、F型)
消防排烟风机是一种新型低噪高效节能型斜流式通风机,斜流式通风机流量大于离心式风机,全压高于轴流式风机,体积小于离心式风机,该风机通过了模拟机的实验研究,采用新的叶型与叶片,从而得到了更大的流量和压力, 提高了风机的效率。
消防排烟风机按叶轮直径分为300-1400mm十六种规格,按类型分A、B、C、D、E、F、S七种类型,共五十八个机号。风量由1500mm-90000m3/h,全压由185-2500Pa;这样就给设计部门和也难怪乎单位提供了充分的选择条件,具体数据参照风机性能参数表。
风机材料有钢制,玻璃钢制作,亦可防爆制作。(采用防爆措施,配用铝合金材料)
消防排烟风机性能参数表
消防排烟风机性能参数表


GXF-B型斜流式通风机性能参数表

GXF-C型斜流式通风机性能参数表

GXF-D型斜流式通风机性能参数表

GXF-E型斜流式通风机性能参数表

GXF-F型斜流式通风机性能参数表

GXF-S型双速斜流式通风机性能参数表(1)

GXF-S型双速斜流式通风机性能参数表(2)

GXF系列斜流式通风机外形及安装尺寸(mm)
GXF系列斜流式通风机外形及安装尺寸(A、B、C、D、E、F型)

GXF-S系列双速斜流式通风机外形及安装尺寸

消防排烟风机

消防排烟风机安装尺寸(mm)

GXF-BX2消声型斜流风机安装尺寸(mm)
